ピタットハウス目黒東山店 > 目黒区上目黒5丁目 売地 No6
~6区画分譲地、残り2区画~
上目黒アドレス、22坪超の整形地
■東山小学校・東山中学校 徒歩5分圏内
■建築条件付き売地
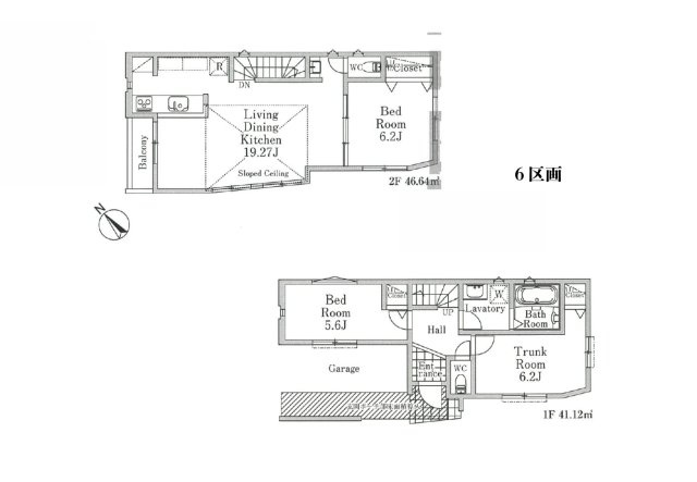
■駐車場付き、2LDK+Sの建築プランあり
■前面道路約4m、開放感あり
■3駅3路線利用可能
東急田園都市線「池尻大橋」駅 徒歩10分
東京メトロ日比谷線・東急東横線「中目黒」駅 徒歩15分
東急東横線「代官山」駅 徒歩21分










(※元利均等方式 金利5.00%まで ※返済年数5~50年まで入力できます)
(※ボーナスは年2回で計算しています。1000万円まで入力できます)









| 所在地 | 東京都目黒区上目黒5丁目 | ||
|---|---|---|---|
| 交通 | |||
| 価格 | 1億4,320万円 | ||
| 土地の敷金/保証金 | -/- | 借地料/借地期間 | -/- |
| 土地面積(坪数) | 73.61㎡(22.26坪) | 坪単価 | 643.31万円 |
| 私道負担面積/セットバック | -/- | ||
| 傾斜地部分面積 | - | 路地状敷地 | - |
| 土地権利 | 所有権 | 接道状況 | 角地(南西 公道 4.0m 間口 6.6m) |
| 都市計画 | 市街化区域 | 用途地域 | 第一種低層住居専用 |
| 建築条件 | 有 | 地目/地勢 | 宅地/- |
| 建ぺい率 | 50% | 容積率 | 150% |
| 総区画数 | 6区画 | 販売区画数 | 2区画 |
| 国土法届出要否 | 不要 | その他の法令上の制限 | 高度地区/準防火地域/高さ制限10m |
| 取引態様 | 一般媒介 | 現況 | 更地 |
| 引渡時期 | 相談 | 引渡条件 | 更地渡 |
| 最適用途 | - | ||
| 物件番号 | 93117950 | ||
| 設備条件 |
|
||
| 備考 |
【建築条件付き売地-カスタムオーダー住宅-】 注文住宅とはちがい、ベーシックラインをご用意することにより、 必要なものは取り入れつつ、極力無駄を省き、高いコストパフォーマンスを実現。 こだわりたいポイントにはオプション工事にて対応もできるので、 多数のお客様より好評を頂いている、独自の住宅企画です。 本物件のベーシックラインは非常に高い水準で設計されております! ・発泡ウレタン断熱材・TES温水式床暖房・16mm厚光触媒サイディングetc. うれしい仕様が含まれているため、オプション費用も低く抑えられます。 【安心パック10】 本物件参考プランの建物価格には下記10項目が含まれており、 資金計画が立てやすいのが大きなメリットです! ①上下水道の引込工事代金 ②ガス・電気の引き込み代金 ③設計・打合せ費用 ④確認申請費用 ⑤外構費用 ⑥地盤調査費用 ⑦地盤改良費用 ⑧地盤10年保証 ⑨建物完成保証 ⑩住宅瑕疵保険(10年間) |
||
| 取扱会社 |
|
||
| QRコード |
このQRコードを読み取ることで、スマホでも物件情報を確認できます。 |
||
※建築条件付き土地とは、その土地に建築する建物の建築請負契約が、 一定期間内に成立することを条件として売買される土地のことをいいます。 建築請負契約成立に向けて設計プランを協議するため、 土地購入者が自己の希望する建物の設計協議をするために必要な相当の期間の交渉期間が設定され、 その期間内で希望を満たすプランが実現できるかどうかにより結論を出します。 なお、この期間は概ね3ヶ月程度とされています。 納得のいくプランが出来ず、建築請負契約が成立しない場合、土地売買契約は白紙に戻り、 土地契約にかかった代金(土地代金、手付金など)は名目のいかんに関わらず、全て返却されます。
※地図上に表示される物件の位置は付近住所に所在することを表すものであり、実際の物件所在地とは異なる場合がございます。
お問合せはこちらから
10:00~20:00 毎週火曜日、水曜日