ピタットハウス目黒東山店 > ヴィルヌーブタワー駒沢
◆通勤通学に便利な『駒沢大学』駅徒歩4分の好立地♪
◆1階部分にスーパー「オオゼキ」がございます◎
◆周辺は閑静な住宅地につき落ち着いた街並みでお過ごし頂けます!
◆前面に高層建築物のないひらけた眺望
◆季節や天候によりますが富士山も見えますよ♪










(※元利均等方式 金利5.00%まで ※返済年数5~50年まで入力できます)
(※ボーナスは年2回で計算しています。1000万円まで入力できます)








| 所在地 | 東京都世田谷区野沢4丁目 | ||
|---|---|---|---|
| 交通 | |||
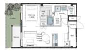
| 間取り/詳細 | 2LDK | ||
| 専有面積/バルコニー面積 | 58.12㎡/14.75㎡ | ルーフバルコニー面積/テラス面積/専用庭面積 | -/-/- |
| 価格 | 8,380万円 | ||
| 管理費 | 21,160円 | ||
| 修繕積立金 | 12,800円 | 修繕積立基金 | - |
| 権利金 | - | 駐車場/月額料金 | -/- |
| 土地の敷金/保証金 | -/- | 借地料/借地期間 | 50,000円/49年3ヶ月 |
| 土地権利 | 普通賃借権 | 国土法届出要否 | 不要 |
| 用途地域 | 商業/近隣商業 | 地勢 | - |
| 種別/構造 | 中古マンション/鉄筋コンクリート | 向き | 南西 |
| 築年月(築年数) | 1999年 1月 (築27年) | ||
| 所在階/階建 | 18階/23階建 | 棟総戸数/販売戸数 | -/- |
| 管理組合有無 | - | 管理形態 | 管理会社に全部委託 |
| 管理方式 | 日勤 | 管理会社 | - |
| 取引態様 | 一般媒介 | 現況 | 空家 |
| 引渡し | 相談 | 建築確認番号 | - |
| 物件番号 | 101570657 | ||
| 設備条件 |
|
||
| 備考 |
高層階・南西向きにつき陽当たり・眺望良好。 前面に高い建物がなく、開放感のある景色をお楽しみいただけます。天候次第では遠景に山並みも望めます。 室内は対面式システムキッチンを採用し、床暖房付きのLDKは家族団らんの中心に。 全居室収納に加え、設備も浴室乾燥機・温水洗浄便座・TVモニター付インターホンなど充実しています。 共用部はエレベーター・宅配ボックス完備、ゲストルームなどタワーマンションならではの設備も魅力。 整備された歩道や徒歩10分圏内にスーパー・小学校が揃う住環境もポイントです。 ペット飼育もご相談可能(細則有)。 価格と立地、眺望のバランスを重視される方にぜひご覧いただきたい一邸です。 お気軽にお問い合わせください。 |
||
| 取扱会社 |
|
||
| QRコード |
このQRコードを読み取ることで、スマホでも物件情報を確認できます。 |
||
※地図上に表示される物件の位置は付近住所に所在することを表すものであり、実際の物件所在地とは異なる場合がございます。
お問合せはこちらから
10:00~20:00 毎週火曜日、水曜日