ピタットハウス目黒東山店 > 目黒区平町_中古戸建
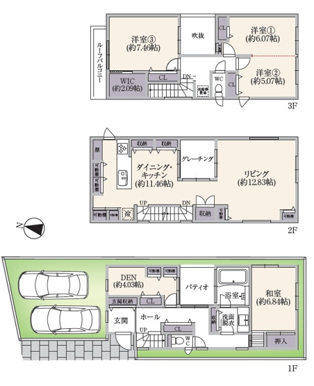
◆『都立大学』駅徒歩8分 2駅3路線利用可能な好立地◎
◆土地30坪超・前面道路5.9mで駐車もスムーズ
◆LDKはプライバシーに配慮した2階設計
◆前面道路幅員5.9m×間口6.3mの陽当たり良好な整形地!










(※元利均等方式 金利5.00%まで ※返済年数5~50年まで入力できます)
(※ボーナスは年2回で計算しています。1000万円まで入力できます)









| 所在地 | 東京都目黒区平町2丁目 | ||
|---|---|---|---|
| 交通 | |||
| 間取り/詳細 | 3LDK/ | 建物面積(坪数) | 143.35㎡(43.36坪 |
| 価格 | 2億2,980万円 | ||
| 駐車場/月額料金 | -/- | ||
| 土地の敷金/保証金 | -/- | 借地料/借地期間 | -/- |
| 土地権利 | 所有権 | 土地面積(坪数) | 101.92㎡(30.83坪) |
| 傾斜地部分面積 | - | 路地状敷地 | - |
| 私道負担面積/セットバック | -/無 | ||
| 地目/地勢 | 宅地/- | 接道状況 | 一方(北 公道 間口 5.9m) |
| 建ぺい率/容積率 | 60%/150% | 用途地域 | 第一種低層住居専用 |
| 都市計画 | - | 種別/構造 | 中古一戸建/木造 |
| 階建 | 3階建 | 築年月(築年数) | 2013年 4月 (築12年) |
| 総区画数/販売区画数 | -/- | 向き | - |
| 現況 | 空家 | その他の法令上の制限 | - |
| 取引態様/引渡時期 | 一般媒介/相談 | 建築確認番号 | - |
| 物件番号 | 101544875 | ||
| リフォーム |
2025年12月 キッチン 浴室 トイレ 壁 床 ◆クロス全面張替 ◆エアコン新規取付 ◆フローリング張 ◆給湯器交換 ◆ビルトインコンロ交換 ◆レースカーテン設置 ◆洗面・浴室・トイレ・キッチン部品交換 ◆ハウスクリーニング |
||
| リノベーション |
令和7年12月20日完工済 ≪リフォーム内容(2025年12月)≫ ■クロス全面張替 ■フローリング張 ■トイレ交換 ■ビルトインコンロ交換 ■洗面・浴室・トイレ・キッチン部品交換 ■エアコン新規取付 ■給湯器交換 ■レースカーテン設置 ■ハウスクリーニング |
||
| 設備条件 |
|
||
| 取扱会社 |
|
||
| QRコード |
このQRコードを読み取ることで、スマホでも物件情報を確認できます。 |
||
※地図上に表示される物件の位置は付近住所に所在することを表すものであり、実際の物件所在地とは異なる場合がございます。
お問合せはこちらから
10:00~20:00 毎週火曜日、水曜日